切线机案例
1、 说明
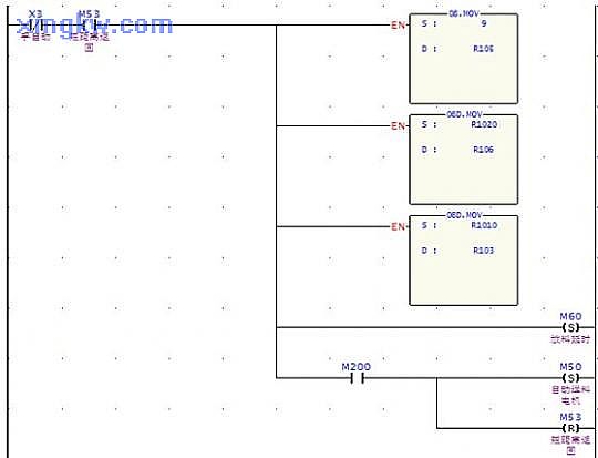
切线机主要是用于刹车皮的定长切线,长度有一个限位开关控制,手动可移动或固定限位开关,用砂轮切刹车皮,砂轮的点击固定在一个工作台上,由于系统要求刹车皮切断后(切断信号由一个光遮断器提供)立即返回并准确停在距离刹车皮很近的地方,以节省下次切割的时间,所以工作台由一台伺服电机带动进行前后移动,并有前接近开关和后接近开关保护不冲出,前接近开关亦可用于判断砂轮是否即将用完。 2、 设计 如图1所示,本图只介绍自动过程,选择自动模式,按下启动按钮,工作台回原位至后限位处,开始送料,定长限位开关导通,工作台前进,砂轮遮断光纤,工作台按设定的后退距离后退,如此反复,至数量到,文本显示另一个页面“数量到”,报警灯亮并发出蜂鸣声,按清零解除报警,或砂轮磨损严重,工作台碰到前限位,报警并返回,文本显示“砂轮磨损”,按停止解除报警。 ![]() ![]()
![]() ![]()
![]()
![]()
![]()
![]()
![]()
![]()
|










